MENU
トップページ
物件情報
販売中物件
成約物件
売却相談
リノベーション
財務コンサルティング
会社案内
採用情報
お問い合わせ
03-6915-5844
contact
成約物件
トップページ
>
成約物件
>
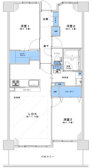
ルネ花小金井
ルネ花小金井
東京都小金井市花小金井
3LDK(72.67㎡)
成約物件一覧をみる
CONTACT
お電話でのお問い合わせ
03-6915-5844
受付時間:10:00~19:00
メールでのお問い合わせ
24時間365日受付