販売中物件

ザ・ガーデンハウス武蔵野

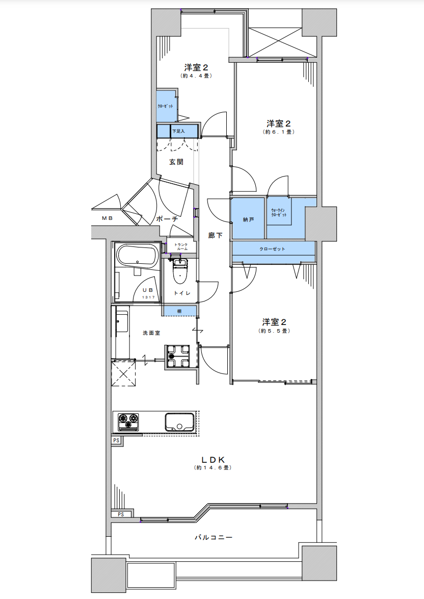
東京都西東京市柳沢 3LDK(73.91㎡)

物件概要

物件名 ザ・ガーデンハウス武蔵野
販売価格 4,990
繕積立金 13,200
管理費 12,600
間取り(専有面積) 3LDK(73.91㎡)
築年月 平成11年7月
所在階 3階 / 11階
リノベーション内容 ◆フローリング新規貼
◆キッチン(タカラスタンダード製)新規交換
◆トイレ(TOTO製)新規交換
◆ユニットバス(TOTO製)新規交換 
◆洗面化粧台(Panasonic製)新規交換 
◆建具交換
◆防水パン・洗濯水栓交換
◆天井・壁クロス新規張替 ハウスクリーニング など
取引形態 売主

物件設備・条件

  • システムキッチン
  • カウンターキッチン
  • グリル
  • 食器洗浄機
  • 浄水機能付水栓
  • スライド収納
  • オートロック
  • モニター付インターフォン
  • 宅配ボックス
  • 管理人通勤
  • 南向き
  • フローリング
  • ペット可
  • 洗濯機置場
  • エレベーター
  • 外構タイル張り
  • 2沿線以上利用可
  • ゴミ置き場
  • 24時間ゴミ捨て可
  • スキップフロア
  • 追い焚き
  • 浴室乾燥機
  • 温水洗浄便座
  • 3面鏡
  • ウォークインクローゼット
  • ペット相談

アクセス

周辺施設

スーパー オーケー東伏見店 約600m(徒歩8分)
コンビニ セブンイレブン西東京柳沢2丁目店 約400m(徒歩5分) 
公園 都立武蔵野中央公園 約720m(徒歩9分)
公園 MUFGPARK 約650m(徒歩9分)
学校 西東京市立保谷第二小学校 約460m(徒歩6分)
学校 西東京市柳沢中学校 約290m(徒歩4分)

CONTACT